Rosella Street, Payneham, SA 5070
Overview
Payneham | 优质近城东北区,宁静街区中的高品质单砖瓦顶美宅!
3/9 ROSELLA STREET, PAYNEHAM
壹·区位解读
坐落于绿意盎然的Rosella街一隅,这套优雅的两卧住宅完美融合了宁静、私密与便利。对于希望在城市近郊享受低维护、高品质生活的人士而言,这里是不二之选。
地理位置优越,步行即可抵达Payneham Oval公园、Marden购物中心、公交站与多家咖啡馆。学区涵盖Felixstow小学与Marryatville中学,驾车数分钟即可到达阿德莱德市中心,尽享便捷都市生活。
贰·教育资源
Preschool
- Trinity Gardens Children’s Centre – 1.5公里
- Anges Goode Kindergardeb Inc – 1.5公里
Primary
- Felixstow Primary School – 1.2公里
- Trinity Gardens School – 1.5公里
Secondary
- Marryatville High School – 3.7公里
- Morialta Secondary College – 3.9公里
众多学校环绕,上学不是烦恼!
叁·医疗资源
- 提供全程中文服务的 East Adelaide Healthcare Marden – 400米
- Portrush Road Medical Centre – 500米
- Burnside Hospital – 2.5公里
众多医疗中心环绕,为您和家人的健康保驾护航!
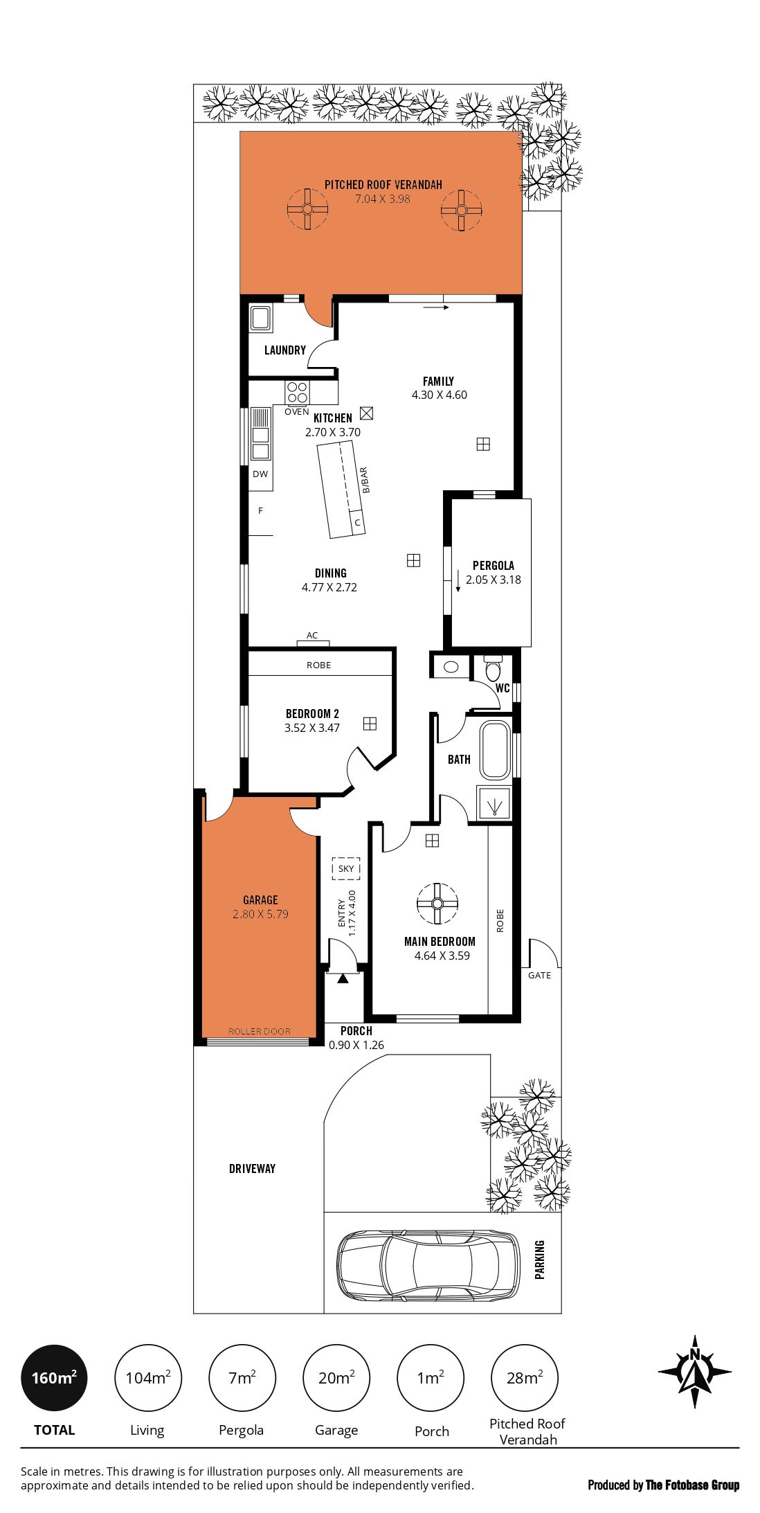
肆·惊艳户型
全屋精致明亮,白色墙面搭配现代饰面与优质地板砖,呈现出永不过时的简约格调。开放式的客厅、餐厅与厨房构成家的核心空间,光线充足、温馨宜人。推拉门通往宽敞的户外娱乐区,带双吊扇的人字形屋顶阳台,为四季聚会或惬意休闲提供了舒适的环境。
厨房配置令人印象深刻——配备Blanco洗碗机、高端Franke水槽及Puratap净水系统。丰富的储物空间与大型中岛吧台,为日常生活提供了便利与社交的完美结合。两间卧室均设有内置衣柜,主卧更享有通往时尚浴室的私密通道;浴室设有独立洗手台与卫生间,布局合理。
舒适度方面,全屋配备蒸发式管道冷却系统、客厅分体空调及主卧吊扇。节能方面,9块太阳能板组成的3.6千瓦系统有效降低能源开支。其他贴心细节包括:车库瓷砖地面、电动卷帘门、额外的车道停车位、带密码的安全侧门及报警系统,令居家更加安心。
主要特色:
• 宁静地段,临近商店、公园与公共交通
房产信息:
*免责声明:
本文提供的信息均来自我们认为可靠的信息源。但对于任何信息传递造成的失误、不准确、遗漏或错误(包括但不限于物业的土地面积、平面图和尺寸、建筑年龄和状况等),澳达地产及其员工不承担任何直接或间接责任。澳达地产声明不对用户或任何人士因使用或未能使用本文所提供的信息或任何链接而导致的任何直接、间接、附带、从属、特殊、惩罚性或惩戒性的损害赔偿负责。如有兴趣置业,应先查看物业,并征询第三方独立建议。
RLA 281 476
Details
-
Beds:2
-
Baths:1
-
Garages:3
-
Price:售出于2025年11月28号
-
Property Status:





















